GU Automatic EM / EMT
La motorisation GU Automatic EM / EMT est robuste et modulable pensée pour s’adapter à chaque configuration tout en garantissant performance, durabilité et simplicité de maintenance.
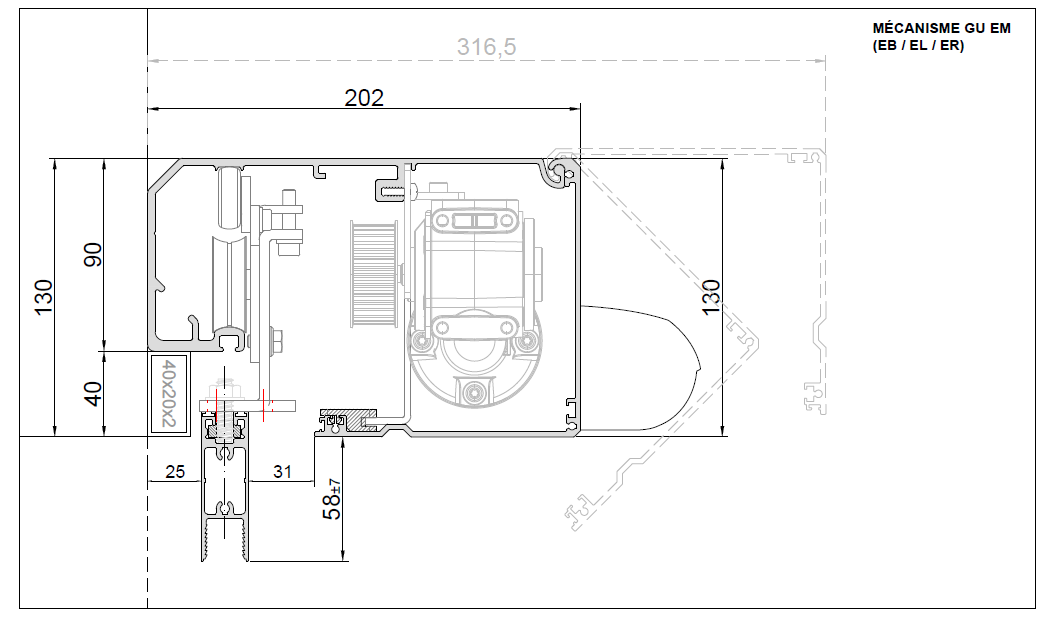
Détails

L’entrainement de porte EM/EMT est un système de motorisation robuste et modulable, pensé pour s’adapter à chaque configuration tout en garantissant performance, durabilité et simplicité de maintenance.




Les profilés permettent de conjuguer légèreté visuelle et grandes dimensions de baies grâce à la finesse des lignes et aux performances de l’opérateur EM / EMT.
Le design compact et fonctionnel s’adapte à tous les environnements et assure un dynamisme d’ouverture quel que soit le gabarit de votre porte.
| Type moteur | Moteur synchrone CC |
| Dimension poutre | 100mm ou 200mm |
| Poids maxi simple | 2x130kg ou 1x130kg |
| Poids maxi télescopique | 4x80kg ou 2x100kg |
Domaines d’application
Convient universellement pour les portes intérieures et extérieures. Des portes coulissantes normales existantes peuvent également être transformées simplement en portes coulissantes automatiques.

Avantages
- Porte configurable selon vos envies et spécificités
- Plusieurs types d’ouverture, simple ou télescopique
- Conception longiligne et compacte
- Programmation et paramétrage directement sur la commande
- Programmation individuelle de nombreuses fonctions
- Mouvements silencieux des vantaux de portes
Télécharger la Plaquette Lacroix GU Automatic EM – EMT
Attributs
| Référence | EM / EMT |
|---|---|
| Métier | Administration, Commerce, Education, Tourisme, Transport |
| Vantaux compatibles | P30, P30d, Full Glass |
| Système | Vantail simple, Double vantaux, Portes télescopiques 2 vantaux et 4 vantaux |